Landscape Design & Build
Designing Timeless Outdoor Spaces, Thoughtfully Crafted by Experts.
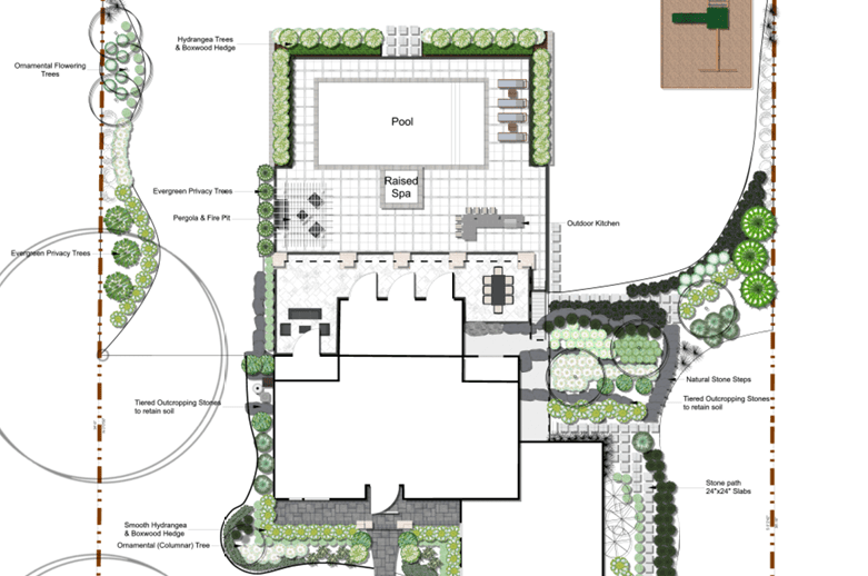
A Beautiful Landscape Means Something
A great landscape is more than plants and stone — it’s a reflection of how you live. It can express warmth, simplicity, sophistication, or calm. At The Bravos, we believe design should honor both your home’s architecture and your lifestyle. With over two decades of experience transforming ordinary yards into extraordinary outdoor spaces, we approach every project as a work of design, craftsmanship, and care. From concept sketches to 3D renderings, from planting compositions to material palettes, we make sure every detail feels intentional — and unmistakably yours.
Our Design Studio
Behind every design by The Bravos is a team of designers who bring vision to life — blending creativity, technical skill, and construction expertise. Led by Jose Francisco Bravo (Jr.), our design studio works closely with each client to craft spaces that are functional, timeless, and true to their aesthetic.
Our team includes:
- Jose Jr. – Lead Designer: Oversees every design concept and client direction, ensuring each project reflects The Bravos’ signature balance of form, function, and craftsmanship.
- Bianca Mendoza – Designer & Office Administrator: Currently studying Landscape Design, Bianca supports both design and operations. She produces hand sketches, renderings, and small-scale garden layouts, and manages plant sourcing and procurement.
- Xavier Solis – Design Intern: A recent University of Illinois graduate in Sustainable Design with a minor in Landscape Studies, Xavier assists with 3D models, technical drawings, and sustainability-focused concepts that enhance our studio’s design process.
Together, our studio combines design education, construction experience, and artistic intuition to create outdoor spaces that feel effortless — yet are anything but ordinary.
Our Landscape Design & Build Services
At The Bravos, we create outdoor environments that are as functional as they are beautiful. Whether it’s a front-yard refresh or a complete backyard transformation, our design-build team handles every detail — from concept through construction — with the same level of care and craftsmanship that defines our family business.
We design and build landscapes that feel like natural extensions of your home. From concept through construction, our team manages every element — ensuring the design intent carries through to the very last plant and paver.
Services include:
Landscape design and installation
Patios, walkways, and retaining walls
Outdoor kitchens, pergolas, and lighting integration
Pool and spa landscapes
Planting and garden enhancement
Full project coordination and permitting
Commercial Design & Build
Your property’s landscape says as much about your brand as your building does. We help businesses, schools, and organizations elevate their exterior environments through thoughtful design and efficient execution.
Services include:
Full-site design and master planning
Entry, plaza, and courtyard renovations
Seasonal and permanent planting installations
Sustainable and low-maintenance designs
Landscape lighting and irrigation coordination
For clients who want to refresh existing landscapes or maintain visual impact year-round, our design studio offers smaller-scale, highly personalized services.
Services include:
- Seasonal planters and color rotations
- Garden redesign and planting compositions
- Hand sketches and small-space renderings
- Plant sourcing and custom container arrangements
- Suggested plant lists tailored to your space (available upon request and subject to schedule availability)
Where design meets craftsmanship. Our award-winning outdoor living designs blend architectural detail, functionality, and comfort to create spaces that feel like true extensions of your home. Every element — from paver patterns to lighting — is intentionally designed to elevate your outdoor experience.
Services include:
Custom outdoor kitchens and bars
Fire pits, fireplaces, and water features
Pavilions, pergolas, and covered structures
Lighting, audio, and entertainment integration
Full design-build coordination and permitting
As a Unilock Authorized Contractor and 2024 Award of Excellence finalist, The Bravos specializes in high-end hardscape and outdoor-living environments across Lake County and the North Shore — combining modern design precision with family-run attention to detail.












Need A Quote For Your Landscaping Project?
We're Happy To Talk Today & Provide A Quote!

